Treatment plan
一:铝镁打磨行业背景
自2014年江苏省苏州市发生昆山中荣金属制品有限公司“8・2”特别重大铝粉尘爆炸事故后,涉尘企业都将铝镁打磨粉尘治理提上重要日程。2016年年初根据我国《危险化学品目录(2015版)》及《危险化学品目录(2015版)实施指南(试行)》,铝粉、镁粉、铝镁粉危险性类别均为“遇水放出易燃气体的物质和混合物,类别2”。铝镁制品打磨抛光产生的粉尘在环境温度下遇水发生缓慢反应,产生氢气并释放热量,而不会引起剧烈反应,在保证除尘器水箱(槽、池)足够水量、良好通风和规范清渣等条件下,均可以采用湿式除尘器。

二:铝镁打磨粉尘治理难点和痛点
处理难点和痛点:1-铝镁工件打磨过程中产生的粉尘主要是铝镁粉尘和纤维棉混合物,具有一定的聚集性,容易导致堵塞现象;2-铝镁粉尘达到一定浓度,遇到明火极易产生燃烧甚至是爆炸现象产生,对车间和人员产生不确定的安全隐患;3-铝镁打磨过程中产生的粉尘浓度大,不宜收集,收集效率低下就会导致车间环境脏乱差;铝镁打磨粉尘治理对企业发展有着至关重要的作用。
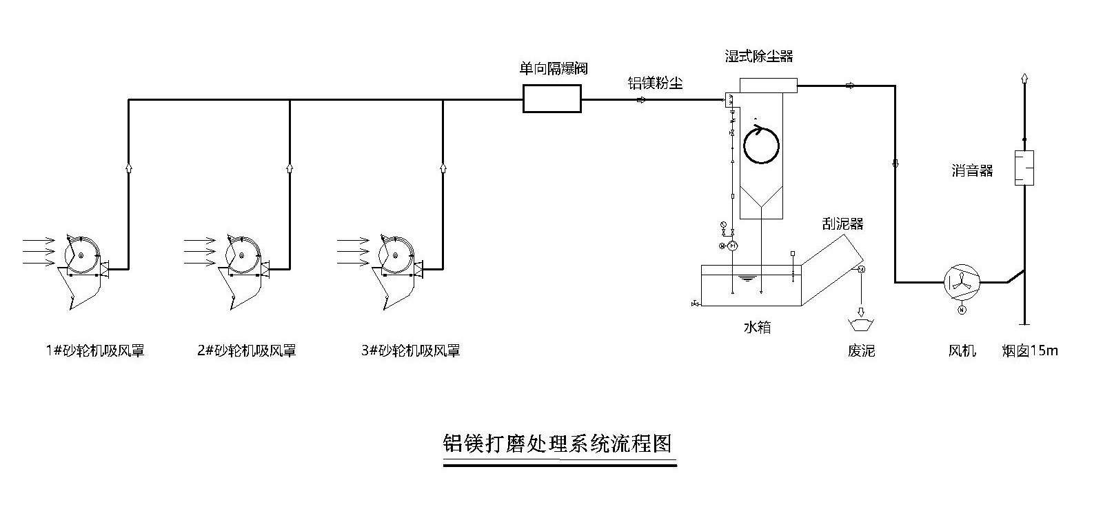
三:铝镁打磨粉尘治理方案描述
科朗兹采用工艺设计为:1-在原有的打磨机上设计专用的吸风罩,吸风罩有效捕集铝镁粉尘收集效率达到95%以上;2-废气通过管路输送到高效文丘里湿式除尘器内进行湿法分离,可以有效去除铝镁粉尘的效率为95%左右;主管路需要增加单向隔爆阀装置,以保障整个系统的安全性;3-处理完的干净气体在引风机的作用下通过15m烟囱进行高空排放。

四:铝镁打磨粉尘治理相关设备介绍
高效文丘里湿式除尘器:
1)-原理介绍:
文丘里湿式除尘器利用高效文丘里设计原理,携带高温烟尘和油烟的气体在切向进入分离器前,需通过设有洗涤液体喷淋的文丘里喉口,气流在文丘里喉口急剧加速,液体气化,气流和液体的相对运动使得充分混合,颗粒物和污染物与液滴集聚,在高速离心分离器中,烟泥滴从气流中被分离出来,油滴漂浮于水面上,通过刮油机不间断进行去除和收集;淤泥沉淀与水底,污水需要定期更换。
2)-优势介绍如下:
· 无需滤芯无堵塞现象
· 安全解决易燃易爆粉尘除尘问题
· 适合于一定范围的高温烟气净化
· 适合粘性粉尘和一定水溶性有机废气
· 净化设备适应性强

五:治理效果介绍
1-排风罩收集效率达到95%以上;
2-文丘里湿式除尘器过滤效率达到95%以上;
3-车间环境改善,客户满意度保证在99%;
六:相关案例图片展示


联系:技术支持
电话:0512-53256185
手机:152-5013-8333
传真:0512-53256185
Q Q:747488661
邮箱:15250138333@163.com
地址:江苏省苏州市太仓市浏河镇新塘新谊西路32号